Page suivante
Page précédente
Crépol (26350)

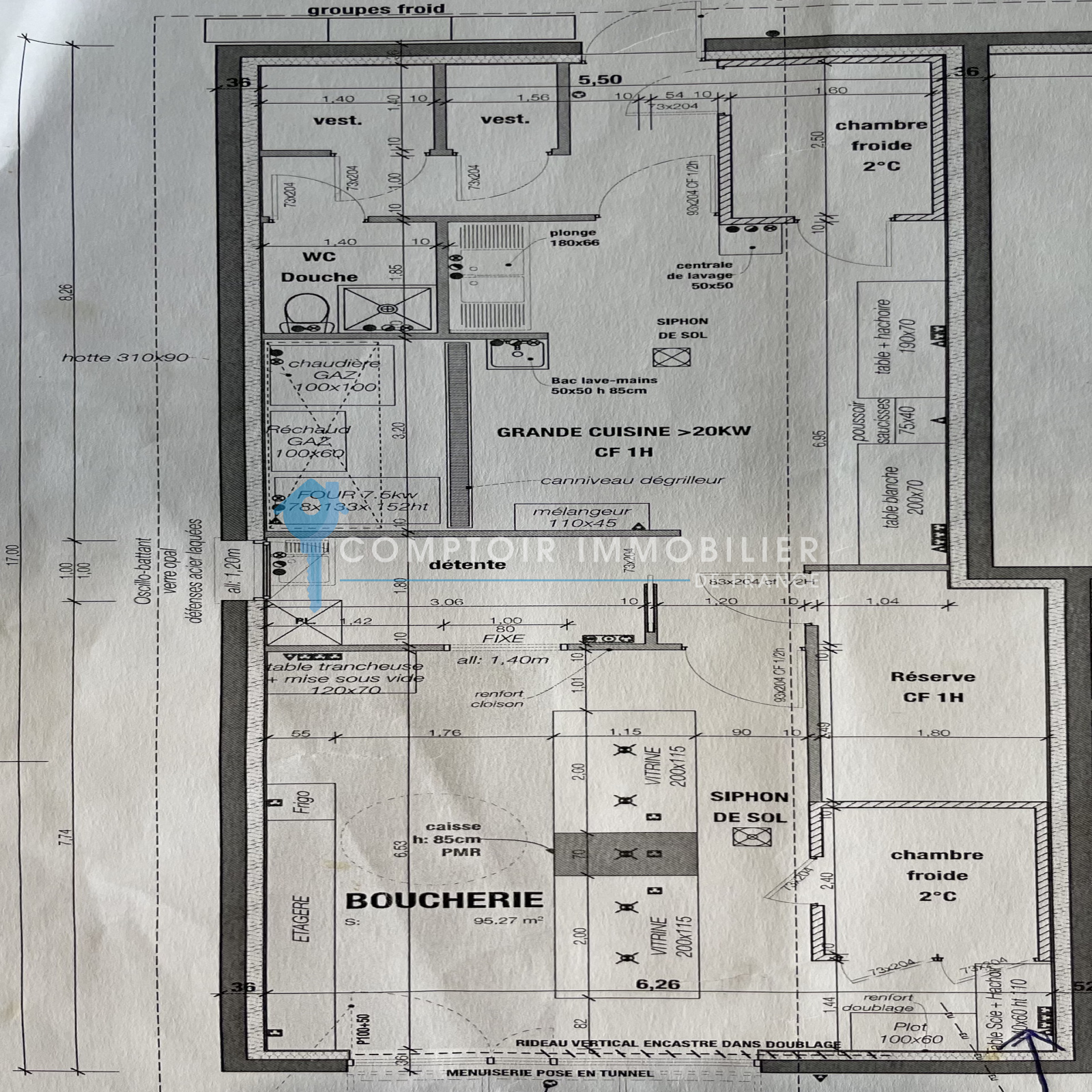
Fonds de commerce 95.27 m²

133 000 € TTC *
Réf 20034

Installée dans des locaux de 2022 au centre du village, cette Boucherie/Charcuterie attend son nouveau propriétaire!

Les 95m2 du local se répartissent entre la surface commerciale de plus de 30m2, 2 chambres froides, 2 vestiaires, une zone détente, une salle d'eau, une réserve et une zone de préparation entièrement équipée de plus de 26m2.

Le local étant récent, il répond aux normes énergétique et de sécurité actuelles, aucun travaux n'est donc à prévoir. Il en va de même pour le matériel cédé avec le fonds de commerce.

En plus de l'activité de Boucherie/Charcuterie, des activités connexes sont en place:

- service de traiteur

- vente de produits d'épicerie

- dépôt de pain.

Plus d'informations et visites avec Korielle CHEVALIER au 06 20 72 02 78, à bientôt!

Annonce proposée par un agent commercial

Bilan énergétique

Diagnostics énergetiques
A propos de ce bien Caractéristiques de ce bien
  • Surface 95,27 m²
  • construit en 2022
  • accès handicapé

Financier

Informations financières
Prix de vente TTC honoraires inclus 133 000 €
Prix net vendeur 120 000 €
Honoraires TTC à la charge acquéreur 10,83 %
Bail Bail commercial
Echéance du bail 2031-07-01
Chiffre d'affaires 2022 311 535 €
Chiffre d'affaires 2023 361 178 €
Chiffre d'affaires 2024 358 916 €
EBE 2022 37 366 €
EBE 2023 39 427 €
EBE 2024 33 486 €
Loyer HT 8 574 € / an

Composition

Composition de ce bien

Rez-de-chaussée

  • Surface commerciale 31.23 m²
  • chambre froide 3.75 m²
  • chambre froide 4.16 m²
  • Zone détente 7.22 m²
  • Zone de préparation 26.4 m²
  • salle d'eau 2.82 m²
  • vestiaire 1.30 m²
  • vestiaire 1.70 m²
  • réserve 5.40 m²
  • dégagement 5.48 m²

Autour du bien

Découvrez le quartier
Korielle CHEVALIER

* TTC : Toutes Taxes Comprises