Page suivante
Page précédente
Solaro (20240)

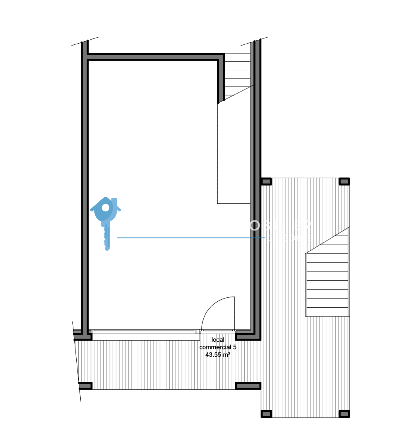
Local commercial 1 pièce(s) 43.55 m²

1
1
143 000 €
Réf 19229

À vendre, locaux commerciaux neufs en rez-de-chaussée d’un élégant bâtiment idéalement situé en accès direct à la nationale, à seulement 300m de la Marine de Solaro.

2 lots de 44 m²
3 lots de 45 m²

Ces espaces lumineux et fonctionnels offrent une excellente visibilité, un accès direct et facilité, ainsi qu’un grand parking pour votre clientèle.

Parfait pour commerces, professions libérales ou bureaux, ces locaux sont une opportunité à ne pas manquer pour s’implanter dans une zone dynamique et en pleine expansion.

Contactez-moi pour plus d’informations

Bilan énergétique

Diagnostics énergetiques
A propos de ce bien Caractéristiques de ce bien
  • Surface 43,55 m²
  • 1 niveau(x)

Financier

Informations financières
Prix de vente honoraires inclus 143 000 €
Prix net vendeur 135 005 €
Honoraires à la charge acquéreur 5,92 %

Composition

Composition de ce bien

Rez-de-chaussée

  • salle 43.55 m²

Autour du bien

Découvrez le quartier
CORSE Agence