Page suivante
Page précédente
Montbonnot-Saint-Martin (38330)

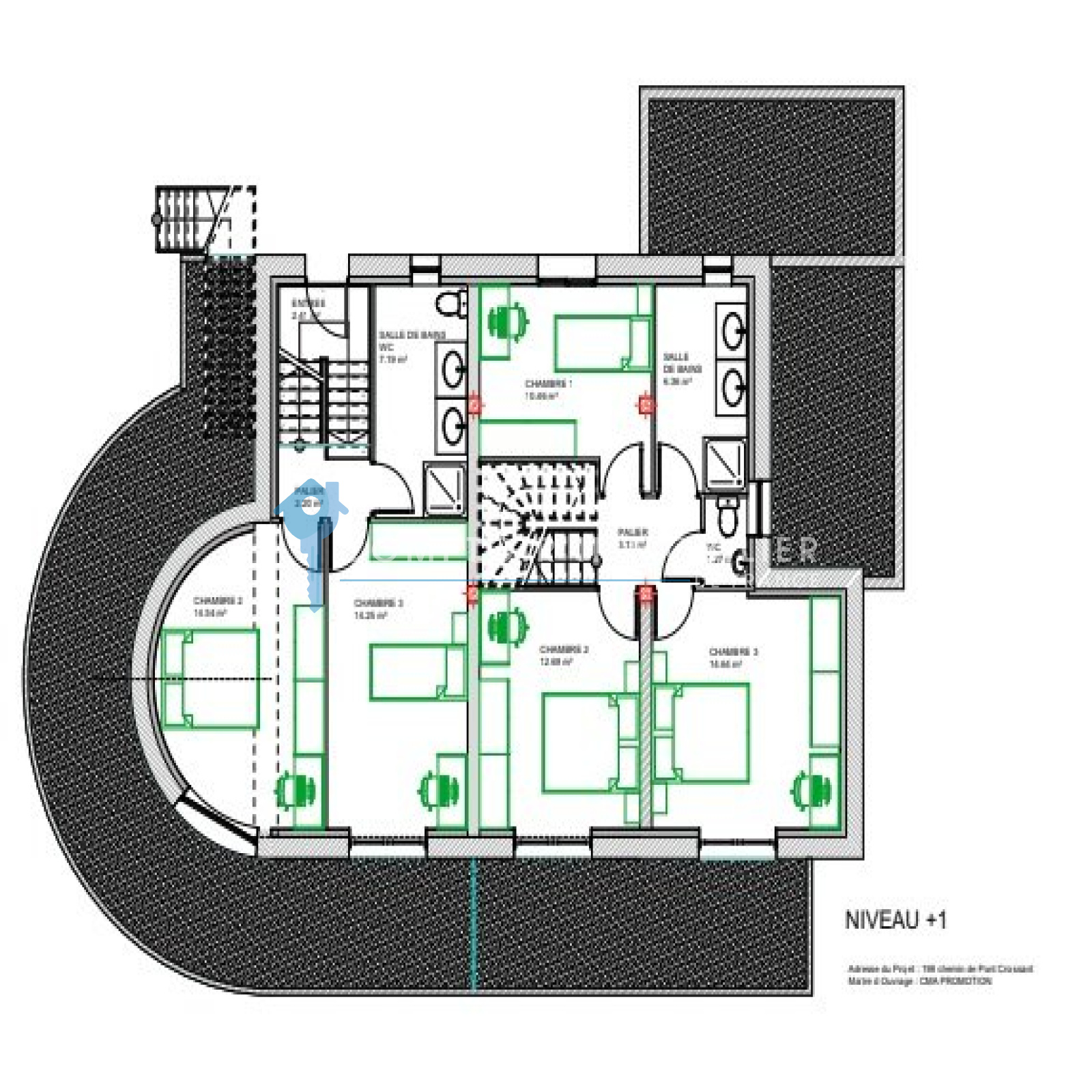
Appartement 5 pièce(s) 4 chambre(s) 142 m²

108 m²
1
2
Réf FAV2300000136
En Exclusivité chez Comptoir Immobilier de France Grenoble - Grésivaudan Appartement T5 en Duplex de 142m2 au dernier étage. Le bien se compose d'une cuisine ouverte sur le salon, 4 chambres, d'une salle de bains et d'une salle d'eau. D'une terrasse de 21,5m2, un jardin de 108m2, d'un garage de 12m2 ainsi que de 2 parkings privatifs. Appartement Disponible en Décembre 2022 Maximum - en cours de réhabilitation - Garantie Décanale de tous les corps de métiers L'appartement se complète de combles pour rangement supplémentaires. Montbonnot - Chemin de Pont Croissant Bien situé à Montbonnot à 5 minutes de La Tronche, Saint Ismier, Biviers, Saint Nazaire les Eymes, à 10 minutes de Bernin, Crolles, à 15 minutes de Grenoble Bien soumis au statut juridique de la Copropriété. Nb de lots : 3. Honoraires charge vendeur CIF GRENOBLE GRESIVAUDAN - Pascal AMALRIC - 06 26 56 64 16 - Plus d'informations sur cif-immo.com (réf. 14376) -- Informations CORONAVIRUS : Nos visites s'effectueront avec la mise en place d'un protocole sanitaire, notamment avec le port d'un masque et dans le respect des gestes barrières, afin d'assurer la protection de tous. --

Bilan énergétique

Diagnostics énergetiques
A propos de ce bien Caractéristiques de ce bien
  • Surface 142 m²
  • carrez 118 m²
  • terrain 108 m²
  • 4 chambre(s)
  • 1 garage(s)
  • 2 parking(s)
  • terrasse

Financier

Informations financières
Les honoraires d'agence seront intégralement à la charge du vendeur  

Autour du bien

Découvrez le quartier

Simulation

Calcul des mensualités
* Champs obligatoires
AGENCES GRENOBLOISES