Page suivante
Page précédente
Montbonnot-Saint-Martin (38330)

Appartement 4 pièce(s) 3 chambre(s) 115 m²

1
1
298 000 €
Réf V720096877

En Exclusivité Comptoir Immobilier de France Grenoble - Grésivaudan :

Projet sur Montbonnot-Saint-Martin - Secteur TARTAIX - Proche des écoles, commerces et des arrêts de bus -

DERNIER LOT DISPO - Deuxième et dernier étage - Vendu en plateau à aménager 115m2 intérieur + 16m2 de Terrasse

Toit / Menuiseries / Facades et la vaibilisation sera réalisé.

Il restera les travaux de second oeuvre (Placot/ éléctircité/ plomberie/ peinture et sols) - Prévoir Budget supplémentaire 70000€ / 80000€

Maison réhabilitée en 3 lots dont deux T5 en duplex en rez de jardin et un T4 en dernier étage.

Pas de charges de copro annuelles- Bien soumis au statut juridique de la Copropriété.

Nb de lots : 3. Charges annuelles de copropriété (Montant moyen annuel quote-part du budget prévisionnel vendeur) : 10 €.

Pour plus d'informations contactez Pascal AMALRIC - O6 26 56 64 16.

Bilan énergétique

Diagnostics énergetiques
A propos de ce bien Caractéristiques de ce bien
  • Surface 115 m²
  • carrez 115 m²
  • 3 chambre(s)
  • 1 salle(s) d'eau
  • 1 garage(s)
  • 2ème étage
  • 2 étage(s)
  • terrasse

Composition

Composition de ce bien

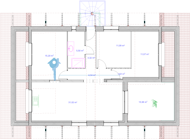
Rez-de-chaussée

  • Séjour/ cuisine 31.02 m²
  • chambre 15.20 m²
  • chambre 11.09 m²
  • chambre 12.70 m²
  • salle d'eau 5.50 m²
  • entrée 7.66 m²
  • terrasse 15.98 m²

Financier

Informations financières
Prix de vente 298 000 € Les honoraires d'agence seront intégralement à la charge du vendeur

Autour du bien

Découvrez le quartier

Simulation

Calcul des mensualités
* Champs obligatoires
AGENCES GRENOBLOISES Agence