Page suivante
Page précédente
Cabrières (30210)

Villa 7 pièce(s) 4 chambre(s) 154 m²

2
1244 m²
2
479 000 €
Réf V6290099426

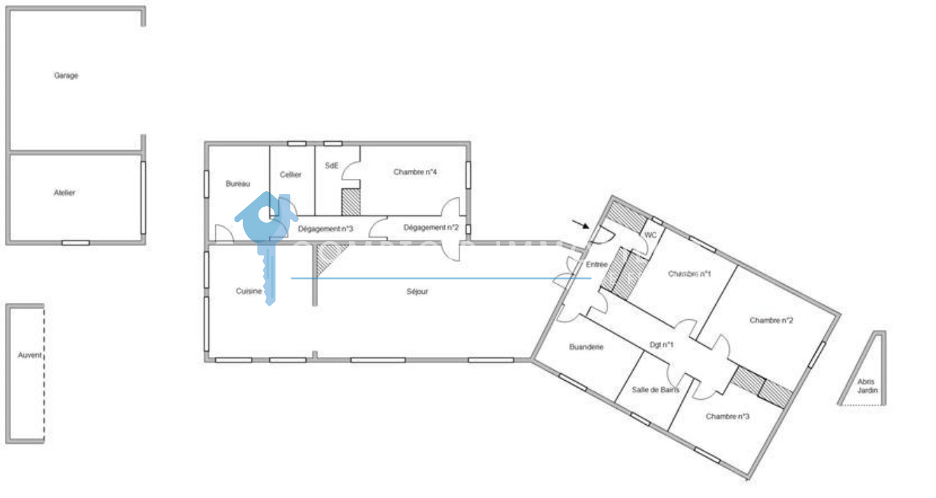
Dans un quartier résidentiel, au calme, belle villa de plain-pied (4 chambres dont 1 suite), avec piscine chauffée et pool house, 2 garages, atelier, abri bois.

Très bien exposée, elle offre  séjour lumineux (cheminée à insert) donnant sur la terrasse au Sud, et ouvert sur la cuisine très réussie (avec cellier), 2 espaces-nuit bien distincts (4 chambres dont une avec salle d'eau privative), ainsi qu'un bureau, une buanderie, une salle d'eau récente, et de nombreux rangements.

En excellent état, votre future demeure soigne votre confort : piscine avec volet roulant, pool house avec douche solaire, portail automatique, climatisation réversible, cheminée à insert, cuisine entièrement équipée, double vitrage et volets électriques à commande centralisée neufs, isolation récente, adoucisseur d'eau, ...

Ce bien de qualité, proche de la nature,offre une cadre de vie privilégié : venez le découvir !

VOTRE CONTACT : Philippe HALLES - Tél : 0 606 712 007 - Agent commercial (E.I.) - RSAC Montpellier n° 503 691 263.

Annonce proposée par un agent commercial


Les informations sur les risques auxquels ce bien est exposé sont disponibles sur le site Géorisques

Bilan énergétique

Diagnostics énergetiques
A propos de ce bien Caractéristiques de ce bien
  • Surface 154 m²
  • carrez 153,60 m²
  • terrain 1 244 m²
  • 4 chambre(s)
  • 2 salle(s) d'eau
  • construit en 1999
  • cuisine américaine (équipée)
  • 2 garage(s)
  • 3 parking(s)
  • exposition Sud
  • 1 niveau(x)
  • vue Jardin
  • terrasse
  • arboré
  • visiophone
  • accès handicapé

Financier

Informations financières
Prix de vente 479 000 € Les honoraires d'agence seront intégralement à la charge du vendeur
Taxe foncière annuelle 2 119 €

Autour du bien

Découvrez le quartier

Simulation

Calcul des mensualités
* Champs obligatoires
Philippe HALLES