Page suivante
Page précédente
Saint-Cirgues-en-Montagne (07510)

Maison 5 pièce(s) 3 chambre(s) 116 m²

2
700 m²
2
139 100 €
Réf 19681

ENTRE COUCOURON et LE LAC D’ISSARLES -

MAGNIFIQUE VUE SUR LE VILLAGE ET LES MONTS ENVIRONANTS -

Au cœur de la Montagne Ardéchoise, sur les hauteurs du village de SAINT-CIRGUES-EN-MONTAGNE, très réputé pour sa foire annuelle aux Champignons, maison à ossature bois offrant un potentiel habitable de 116 m² environ, sur 2 niveaux.

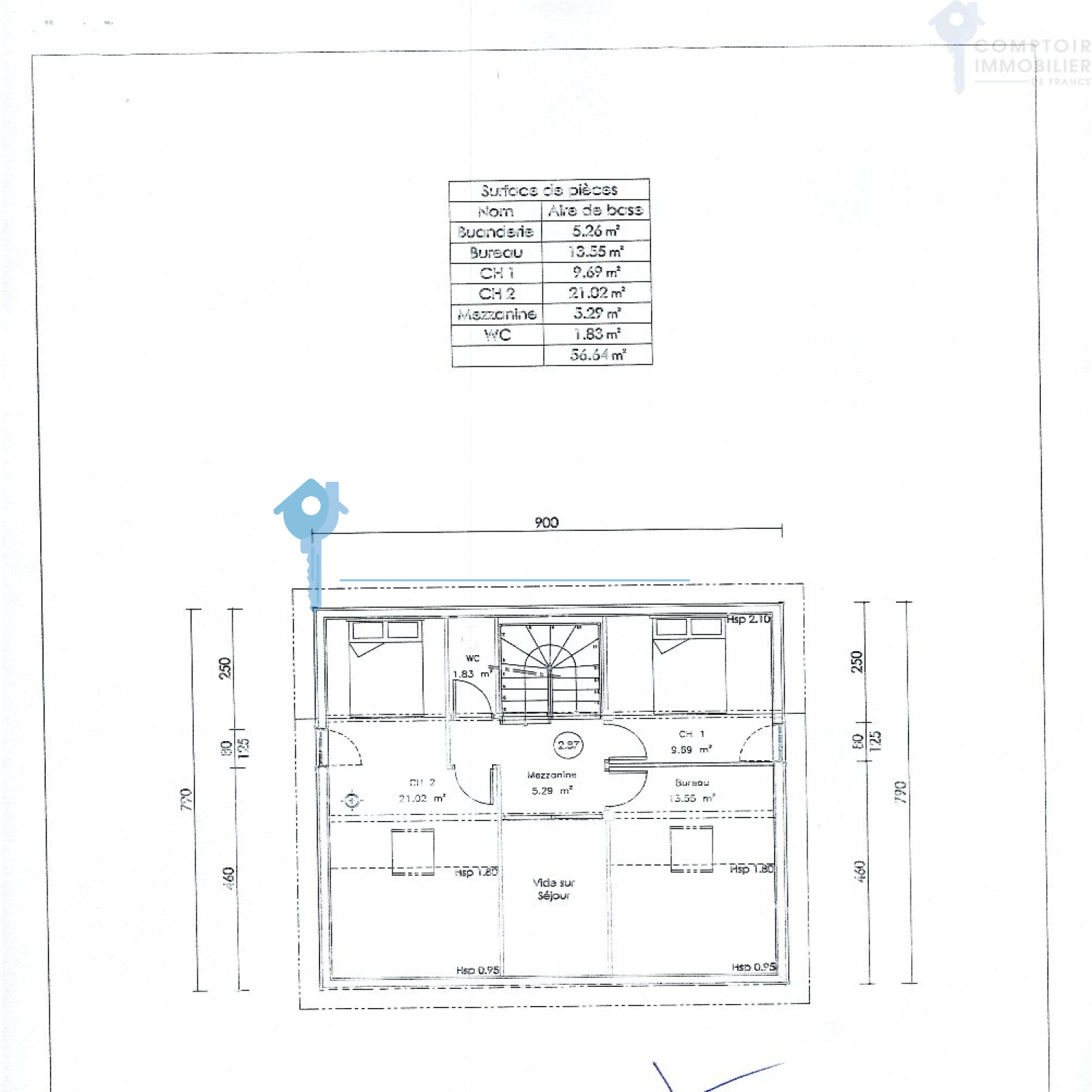
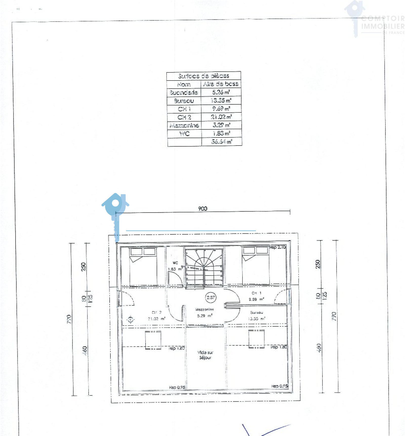
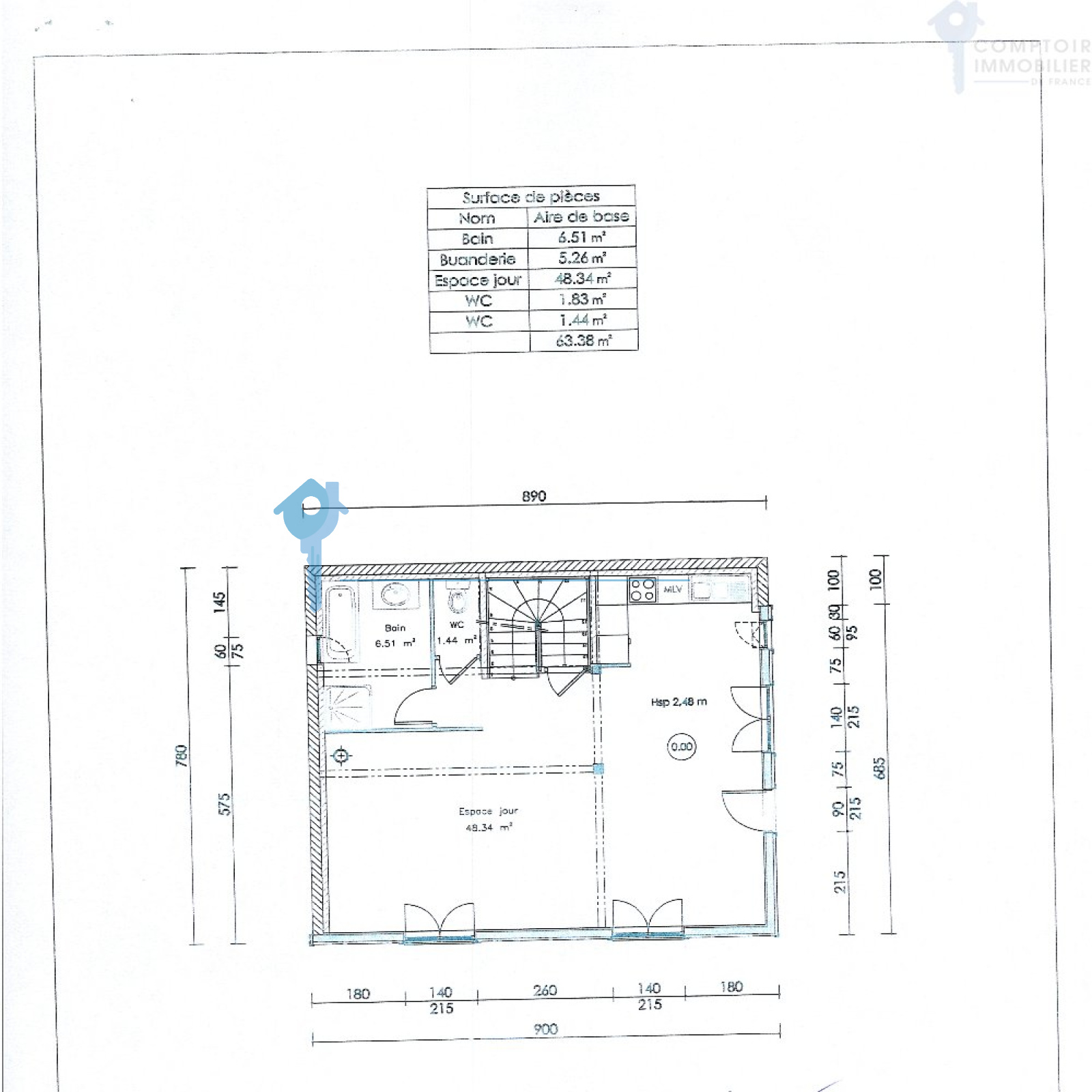
Le projet : Au rez-de-jardin, sous-bassement construit en béton banché avec 2 beaux garages pour une surface de 56 m² environ, avec la montée d’escalier intérieure qui donne accès au rez-de-chaussée ; avec un espace jour de 48 m² environ très lumineux, une salle de bains et un W.C. séparé ; Et, à l’étage accessible par une montée d’escaliers en bois, une mezzanine, 3 chambres et un W.C. séparé.

Le hors d’eau - hors d’air est bien fini, il vous reste à réaliser les aménagements intérieurs à votre gout, l’électricité, la plomberie et le chauffage ; Les compteurs eau et EDF sont en place et la maison est raccordée au réseau d’assainissement communal !

Honoraires charge acquéreur ;

Pour les Amoureux de la Nature, idéal pour votre prochaine secondaire ou principale ! Un prix justifié de 139.100 € H.A.I., à découvrir avec Eva BENOIT, votre Conseillère en Immobilier C.I.F. ARDECHE


Les informations sur les risques auxquels ce bien est exposé sont disponibles sur le site Géorisques

Bilan énergétique

Diagnostics énergetiques
A propos de ce bien Caractéristiques de ce bien
  • Surface 116 m²
  • terrain 700 m²
  • 3 chambre(s)
  • 2 salle(s) d'eau
  • construit en 2008
  • 2 garage(s)
  • 2 parking(s)
  • exposition Sud-Est
  • 1 étage(s)
  • vue Montagnes, Campagne
  • arboré

Financier

Informations financières
Prix de vente honoraires TTC inclus 139 100 €
Prix net vendeur 130 000 €
Prix de vente honoraires TTC exclus 130 000 €
Honoraires TTC à la charge acquéreur 7 %
Taxe foncière annuelle 50 €

Autour du bien

Découvrez le quartier

Simulation

Calcul des mensualités
* Champs obligatoires
ARDECHE Agence