Page suivante
Page précédente
Ferrières-les-Verreries (34190)

Villa 7 pièce(s) 4 chambre(s) 259.7 m²

2
2621 m²
3
980 000 €
Réf ZVVI3560089517

Découvrez cette villa d'architecte nichée à Ferrière-les-Verreries, 40 km de Montpellier Occitanie ( dept 34), un véritable bijou architectural. Sa conception unique allie harmonieusement acier, bois, végétal et pierre, offrant une élégance rare et contemporaine. Avec 200 m² d'espace habitable, elle propose trois chambres lumineuses et un espace de vie ouvert, idéal pour des moments de convivialité. Un atelier indépendant de 86 m² ajoute une polyvalence exceptionnelle, parfait pour un bureau, maison d’hôtes ou espace commercial. Le terrain de 2 621 m², en pleine nature, offre un havre de paix incomparable. Baignée de lumière naturelle, cette propriété fusionne parfaitement les espaces intérieurs et extérieurs. Contactez-nous pour une visite virtuelle et ne manquez pas cette opportunité rare.

Annonce proposée par un agent commercial

Bilan énergétique

Diagnostics énergetiques
A propos de ce bien Caractéristiques de ce bien
  • Surface 259,70 m²
  • terrain 2 621 m²
  • séjour 34,63 m²
  • 4 chambre(s)
  • 2 salle(s) d'eau
  • construit en 2011
  • cuisine séparée (équipée)
  • Chauffage individuel : autre (electrique)
  • 2 parking(s)
  • exposition Sud-Est
  • 1 niveau(x)
  • vue Garrigue
  • arboré
  • piscinable
  • accès handicapé

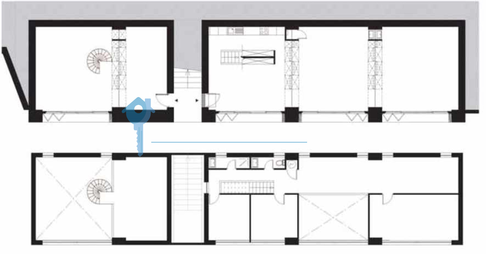
Composition

Composition de ce bien

Rez-de-chaussée

  • cuisine 68.05 m²
  • salon/sejour 34.63 m²
  • chambre 18.32 m²
  • chambre 9.38 m²
  • salle de bain 2.76 m²
  • WC 2.16 m²
  • mezzanine 37.77 m²
  • annexe 76 m²

Etage 1

  • chambre 9.76 m²

Financier

Informations financières
Prix de vente honoraires TTC inclus 980 000 €

Autour du bien

Découvrez le quartier

Simulation

Calcul des mensualités
* Champs obligatoires
DIAS Agence