Page suivante
Page précédente
Saint-Égrève (38120)

Appartement 4 pièce(s) 3 chambre(s) 81.62 m²

1
Ascenseur
1
245 000 €
Réf V1850097182

Comptoir Immobilier de France Grenoble --- Appartement avec possibilité de garage (en sus : +20k) ---

Dans une belle résidence récente livrée en 2019 avec ascenseur, découvrez cet appartement 4 pièces de 82 m² situé au 1er étage, avec terrasse exposée Sud-Ouest de 8 m².

L’espace de vie de 33 m² comprend une cuisine ouverte sur le séjour, offrant un cadre convivial et moderne.

L’appartement dispose de trois chambres (11 à 12 m² chacune, dont 2 avec placard), d’une salle de bains et de toilettes séparées.

Actuellement loué jusqu’en février 2029, il constitue un investissement locatif.

Emplacement stratégique : à seulement 2 min à pied de l’arrêt de bus Gavanière (ligne 22) desservant Grenoble et du tram E (arrêt La Pinéa). Commerces, écoles et commodités à proximité immédiate.

Un cadre de vie calme et verdoyant, tout en restant proche du dynamisme grenoblois.

Loyer encadré : jusqu’à 1082,40 € HC/mois

Idéal pour un premier investissement ou pour préparer un projet à long terme, ce bien allie confort moderne et emplacement recherché.

Honoraires charge vendeur / Chauffage collectif gaz / DPE : C / Charges annuelles : 1675eur avec garage incluant ascenseur, chauffage, eau chaude soit environ 140eur/mois / Possibilité de garage en sus : +20000eur

Pour plus d'informations, vous pouvez me contacter directement au O6 08 68 19 99

Bilan énergétique

Diagnostics énergetiques
A propos de ce bien Caractéristiques de ce bien
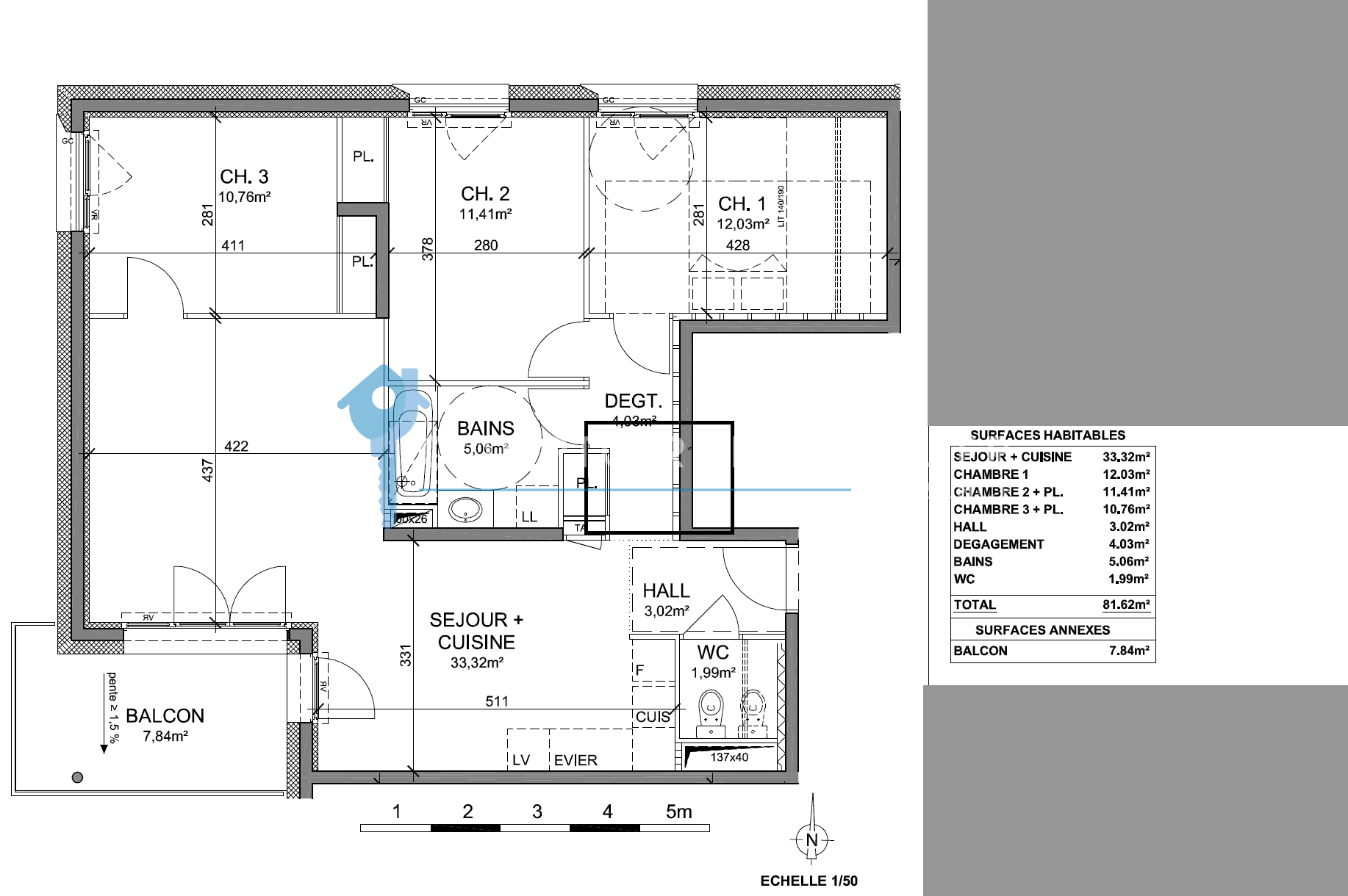
  • Surface 81,62 m²
  • carrez 81,62 m²
  • séjour 33 m²
  • 3 chambre(s)
  • 1 salle(s) de bain
  • construit en 2019
  • cuisine américaine (équipée)
  • Chauffage collectif : chaudière (gaz)
  • 1 garage(s)
  • exposition Sud-Ouest
  • 1er étage
  • 4 étage(s)
  • ascenseur
  • terrasse

Composition

Composition de ce bien

Etage 1

  • salon/sejour 33.32 m²
  • chambre 12.03 m²
  • chambre 11.41 m²
  • chambre 10.76 m²
  • entrée 3.02 m²
  • dégagement 4.03 m²
  • salle de bain 5.06 m²
  • WC 1.99 m²
  • balcon 7.84 m²

Info copro

Copropriété
  • Copropriété Oui
  • Lot n° 106
  • Nombre de lots 113
  • Quote part annuelle des charges 1 767 €

Financier

Informations financières
Prix de vente 245 000 € Les honoraires d'agence seront intégralement à la charge du vendeur
Charges 140 €
Taxe foncière annuelle 1 600 €

Autour du bien

Découvrez le quartier

Simulation

Calcul des mensualités
* Champs obligatoires
AGENCES GRENOBLOISES