Page suivante
Page précédente
Grenoble (38000)

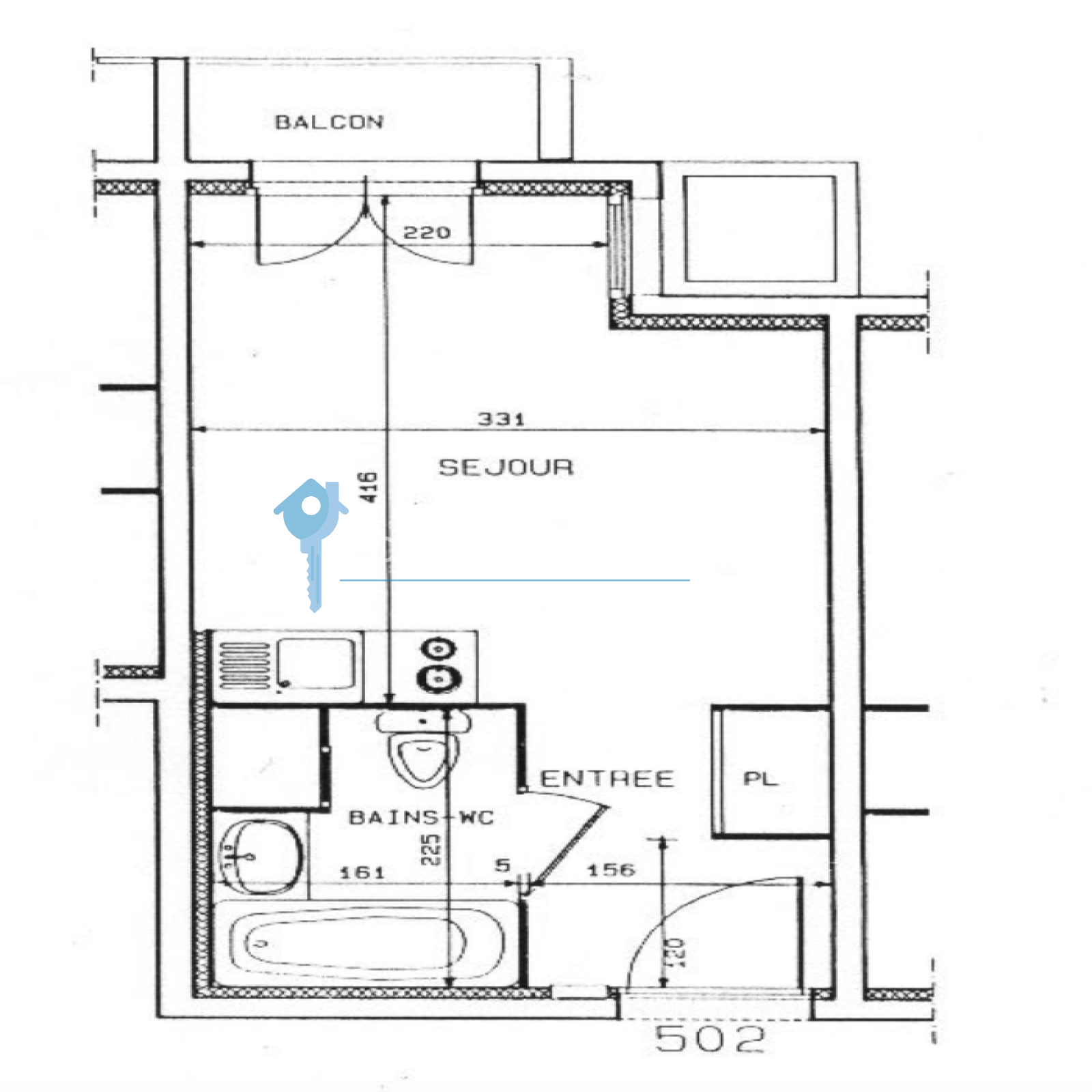
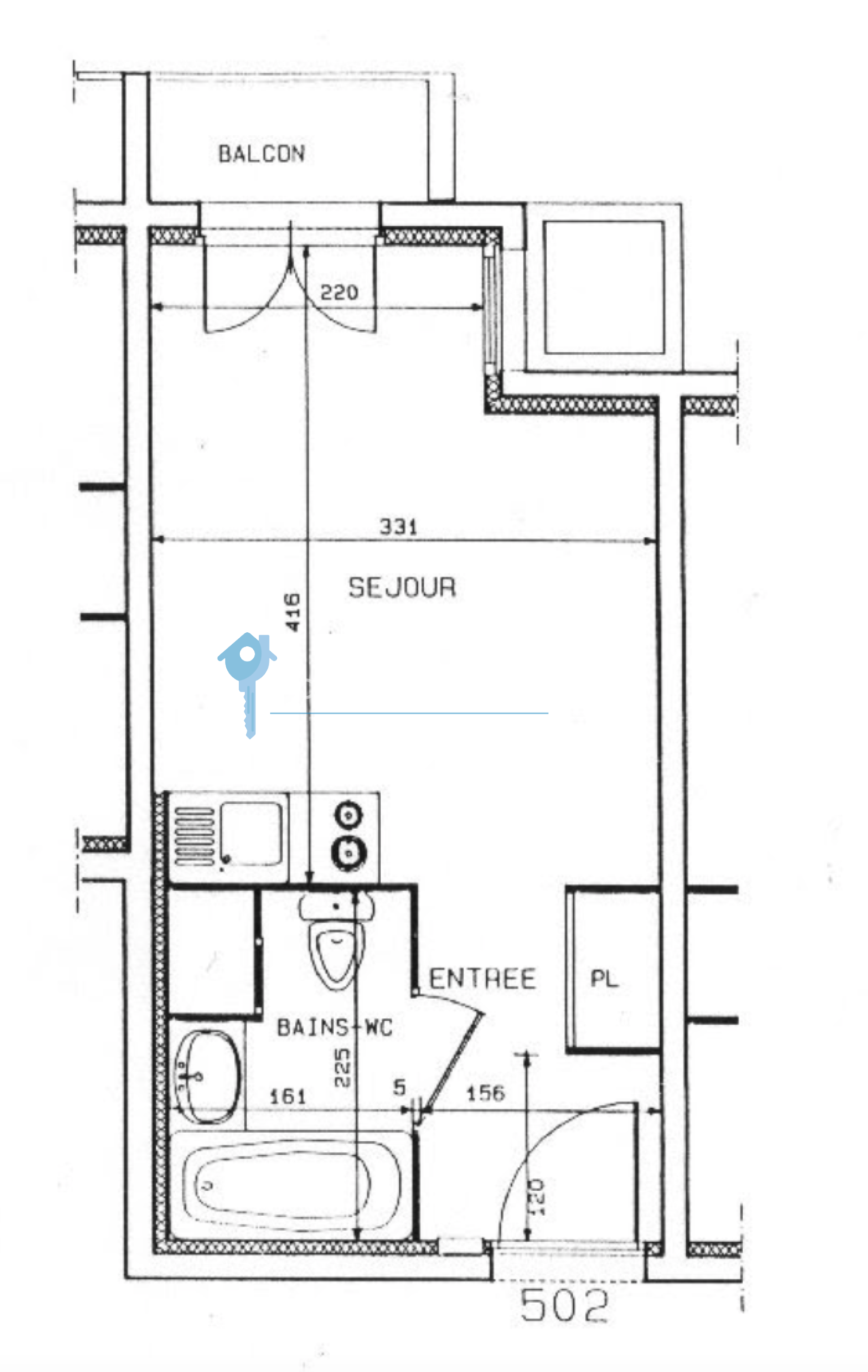
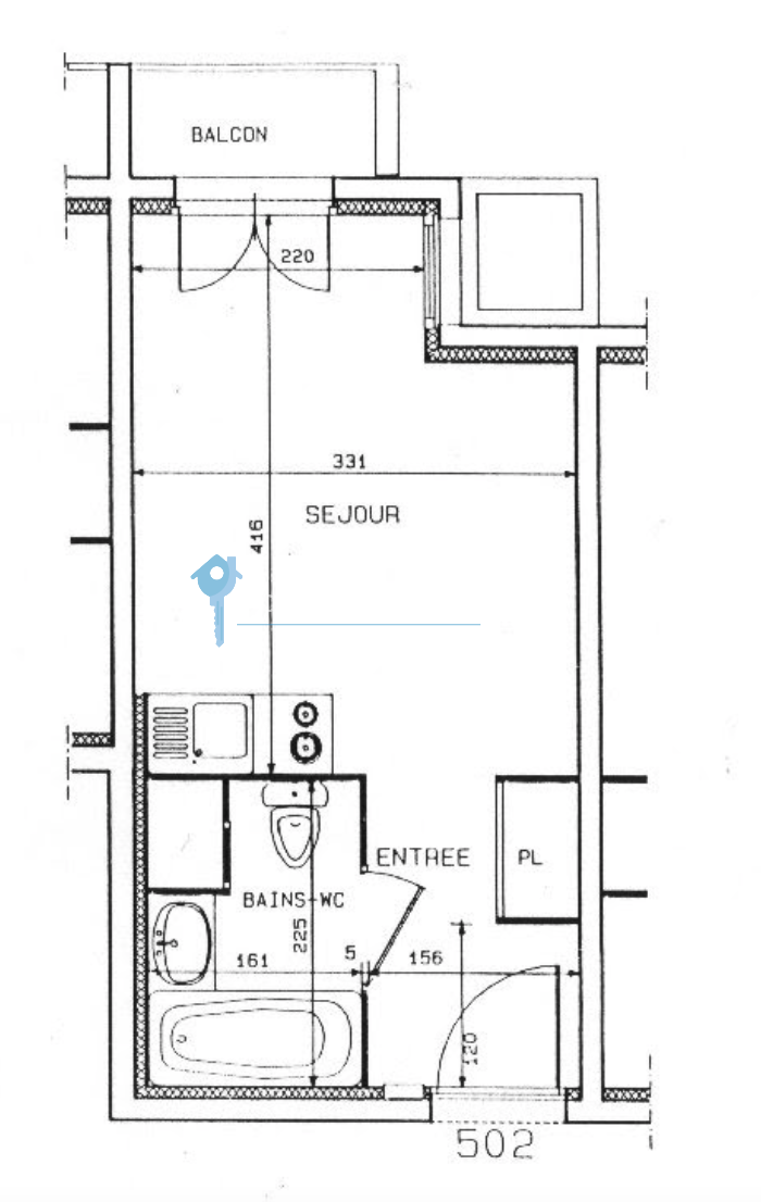
Appartement 1 pièce(s) 19 m²

1
Balcon
Ascenseur
65 000 €
Réf V1850099296
--------SOUS OFFRE------
Comptoir Immobilier de France Grenoble : Idéal Investisseur !
Grenoble – Avenue de Vizille (à 2 pas du cours Berriat et de la Gare)
Emplacement recherché, proche commerces, écoles, tram et bus.
Situé au 5ème étage avec ascenseur, côté cour (au calme), ce studio est idéal pour un investissement locatif sécurisé.
Il se compose d'une pièce de vie lumineuse, d'un coin cuisine équipé, une salle d’eau avec baignoire et WC, un placard de rangement et un balcon côté cour.
- Immeuble sécurisé avec interphone
- Bien actuellement loué 415 € / mois CC
- Secteur non soumis à l’encadrement des loyers
- DPE : C
- Taxe foncière : 850 €
- Charges de copropriété : 500 € / an (eau froide, ascenseur, charges communes)
CIF GRENOBLE GRESIVAUDAN - Lucie RIONDEL O6 O8 68 19 99

Bilan énergétique

Diagnostics énergetiques
A propos de ce bien Caractéristiques de ce bien
  • Surface 19 m²
  • carrez 19 m²
  • séjour 15 m²
  • 1 salle(s) de bain
  • construit en 1989
  • kitchenette (équipée)
  • Chauffage individuel : radiateur (electrique)
  • exposition Ouest
  • 2 côté(s) mitoyen(s)
  • 5ème étage
  • 6 étage(s)
  • ascenseur
  • vue Chartreuse
  • balcon
  • quartier Berriat-ampère, Europole, Quartier Chorier-Berriat

Composition

Composition de ce bien

Etage 5

  • salon/sejour 15 m²
  • salle de bain 3 m²
  • entrée 1 m²
  • balcon

Info copro

Copropriété
  • Copropriété Oui
  • Lot n° 116
  • Nombre de lots 134
  • Quote part annuelle des charges 500 €
  • Plan de sauvegarde Non
  • Statut du syndic Pas de procédure en cours

Financier

Informations financières
Prix de vente 65 000 € Les honoraires d'agence seront intégralement à la charge du vendeur
Taxe foncière annuelle 850 €

Autour du bien

Découvrez le quartier

Simulation

Calcul des mensualités
* Champs obligatoires
AGENCES GRENOBLOISES