Page suivante
Page précédente
Chatte (38160)

Maison 4 pièce(s) 3 chambre(s) 92 m²

2
119 m²
1
242 000 €
Réf 21343

Sur la commune de Chatte, dans une impasse calme, venez décourvir cette maison de 2023, prête à vivre.


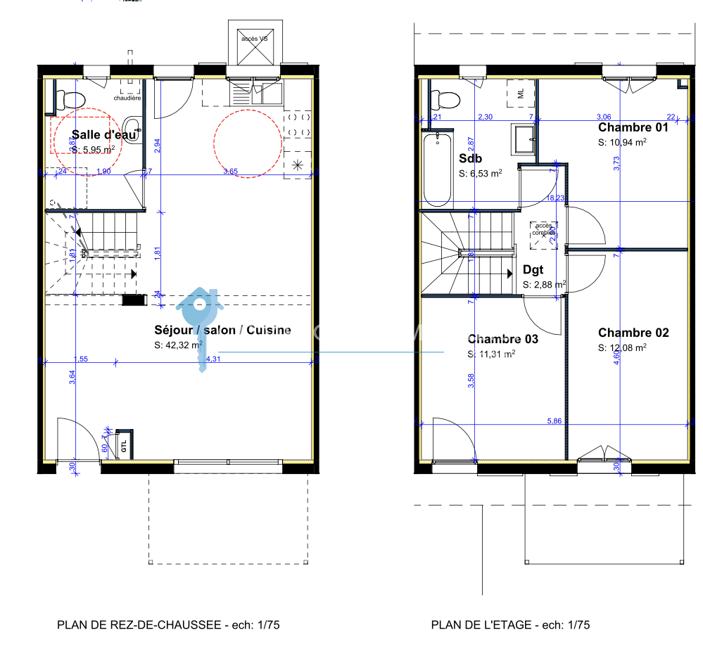
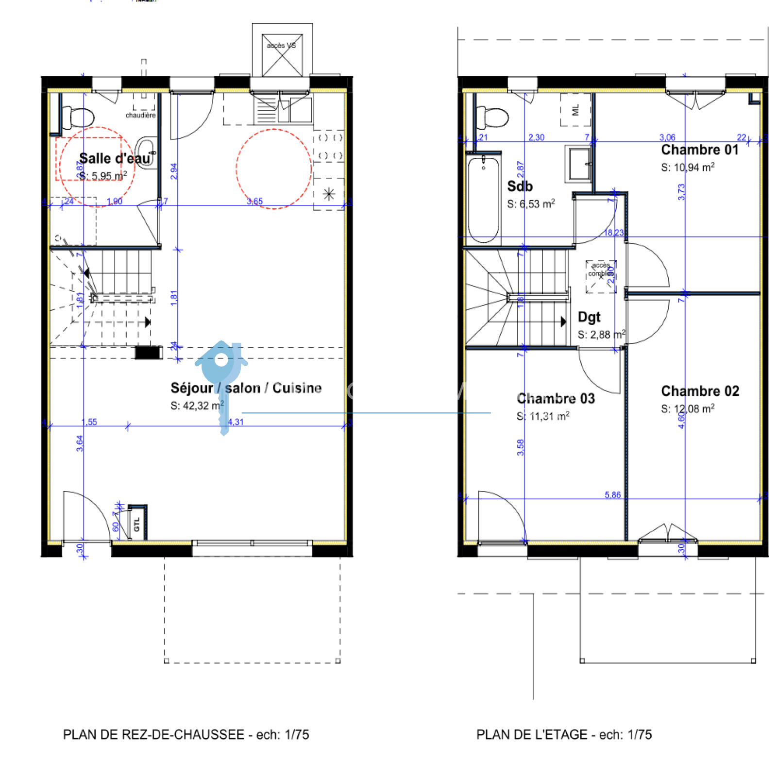
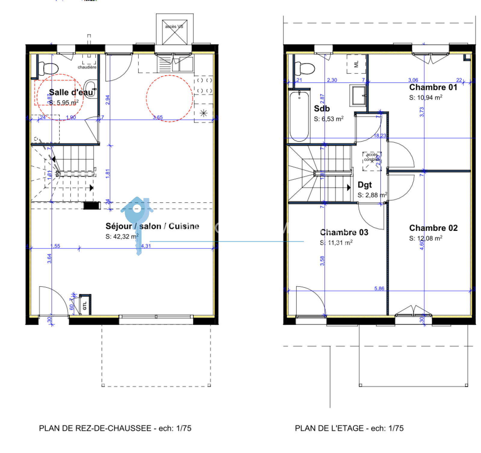
En rez-de-chaussée, une pièce de vie de 42m2 avec cusinie semi-équipée et accès aux extérieurs Nord et Sud (parcelle totale de 119m2). Aussi, une salle d'eau avec wc.

À l'étage, un pallier dessert 3 chambres de 11m2 à 12m2 ainsi qu'une salle de bain, également avec wc.

L'habitation présentée ce jour répond aux normes RE 2020, vous assurant de faibles consommations énergétiques et aucuns travaux à prévoir.


Une garage de 14m2 complète ce bien.


À très bientôt pour une visite!

Annonce proposée par un agent commercial

Bilan énergétique

Diagnostics énergetiques
A propos de ce bien Caractéristiques de ce bien
  • Surface 92 m²
  • carrez 92 m²
  • terrain 119 m²
  • séjour 42 m²
  • 3 chambre(s)
  • 2 salle(s) de bain
  • construit en 2023
  • Chauffage individuel : radiateur (gaz)
  • 1 garage(s)
  • exposition Sud
  • 2 côté(s) mitoyen(s)
  • 2 niveau(x)

Info copro

Copropriété
  • Copropriété Oui
  • Lot n° 4/6
  • Nombre de lots 2
  • Quote part annuelle des charges 120 €
  • Plan de sauvegarde Non
  • Statut du syndic Pas de procédure en cours

Financier

Informations financières
Prix de vente 242 000 € Les honoraires d'agence seront intégralement à la charge du vendeur

Autour du bien

Découvrez le quartier

Simulation

Calcul des mensualités
* Champs obligatoires
Korielle CHEVALIER