Page suivante
Page précédente
Caumont-sur-Durance (84510)

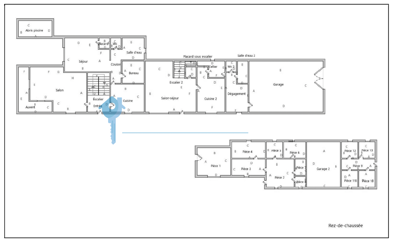
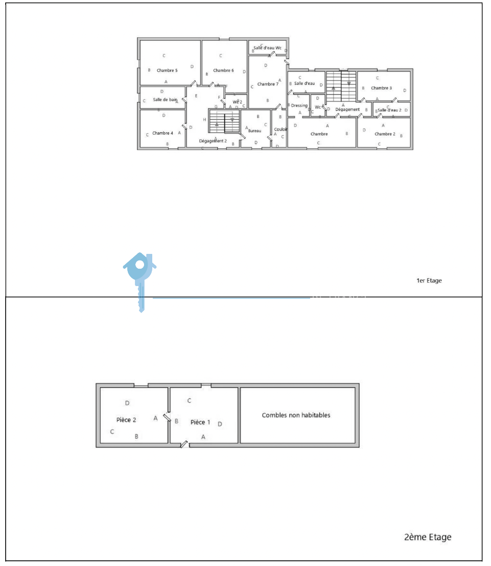
Mas 12 pièce(s) 8 chambre(s) 424 m²

2
3
8155 m²
650 000 €
Réf V6170098700

À proximité immédiate de L’Isle-sur-la-Sorgue, ce mas de caractère de plus de 420 m² propose une interprétation contemporaine de la maison provençale, où volumes, lumière et sérénité s’accordent harmonieusement.

La rénovation a été menée avec une approche durable et qualitative, offrant des espaces sains, chaleureux et fonctionnels, loin des codes traditionnels figés.

Implantée sur un terrain naturel de plus de 8000m² exposé plein sud, la propriété bénéficie d’un environnement préservé avec piscine, espaces ombragés et larges ouvertures sur l’extérieur.

Le mas se compose de trois parties distinctes :

- Deux habitations indépendantes, idéales pour recevoir famille, amis ou développer une activité d’accueil,

- Une dépendance à rénover, offrant un fort potentiel d’aménagement selon vos projets (habitation supplémentaire, atelier, espace professionnel).

Un bien singulier, alliant calme, modularité et potentiel, dans l’un des secteurs les plus recherchés du Vaucluse.

Annonce proposée par un agent commercial

Bilan énergétique

Diagnostics énergetiques
A propos de ce bien Caractéristiques de ce bien
  • Surface 424 m²
  • carrez 424 m²
  • terrain 8 155 m²
  • 8 chambre(s)
  • 2 salle(s) de bain
  • 3 salle(s) d'eau
  • construit en 1882
  • cuisine américaine (équipée)
  • exposition Sud
  • 1 niveau(x)

Financier

Informations financières
Prix de vente 650 000 € Les honoraires d'agence seront intégralement à la charge du vendeur
Taxe foncière annuelle 5 600 €

Autour du bien

Découvrez le quartier

Simulation

Calcul des mensualités
* Champs obligatoires
Sébastien ARSAC