Page suivante
Page précédente
Vallon-Pont-d'Arc (07150)

Villa 12 pièce(s) 7 chambre(s) 490 m²

2631 m²
1
595 000 €
Réf 18913

EXCLUSIVITE DE L’AGENCE COMPTOIR IMMOBILIER de France –

ARDECHE PLEIN-SUD ENTRE VALLON PONT D’ARC ET BARJAC

A PROXIMITE DES CELEBRES SITES TOURISTIQUES, PONT D’ARC, GORGES DE L’ARDECHE, GROTTE CHAUVET.

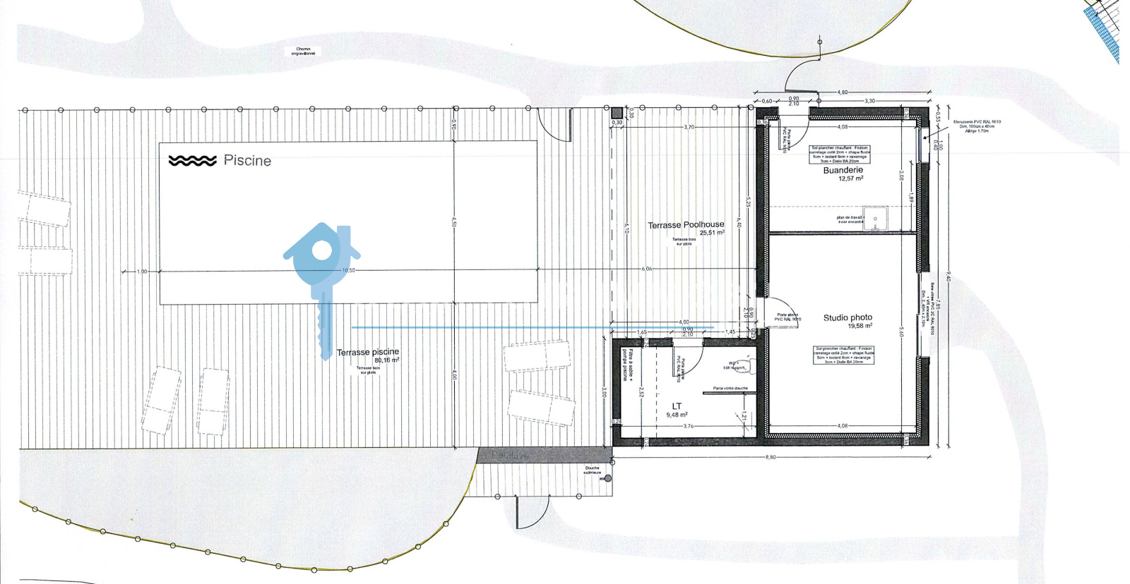
Sur les hauteurs de VAGNAS, au cœur d’un petit quartier très calme, Ensemble immobilier hors d'eau hors d'air a terminer selon vos souhaits et vos gouts ;

Belle parcelle boisée de 2.600 m² composée de deux maisons accolées de 100 m² et 150 m² sur deux niveaux avec belle terrasse offrant une vue panoramique, un garage indépendant de 60m², et deux autres habitations de 60 m² chacune à vocation de location saisonnière.

Projet validé avec piscine centrale.

Dossier complet fourni sur demande par mail

A découvrir et à visiter avec Bruno CHAMPETIER, votre Négociateur Immobilier de l’Agence COMPTOIR IMMOBILIER de France ARDECHE.

Honoraires charge vendeur.


Les informations sur les risques auxquels ce bien est exposé sont disponibles sur le site Géorisques

Bilan énergétique

Diagnostics énergetiques
A propos de ce bien Caractéristiques de ce bien
  • Surface 490 m²
  • terrain 2 631 m²
  • 7 chambre(s)
  • 1 garage(s)
  • exposition Nord-Sud
  • 1 niveau(x)
  • vue Campagne

Financier

Informations financières
Prix de vente honoraires TTC inclus 595 000 €
Prix net vendeur 571 000 €
Prix de vente honoraires TTC exclus 571 000 €
Honoraires TTC à la charge acquéreur 4,2 %

Autour du bien

Découvrez le quartier

Simulation

Calcul des mensualités
* Champs obligatoires
ARDECHE Agence