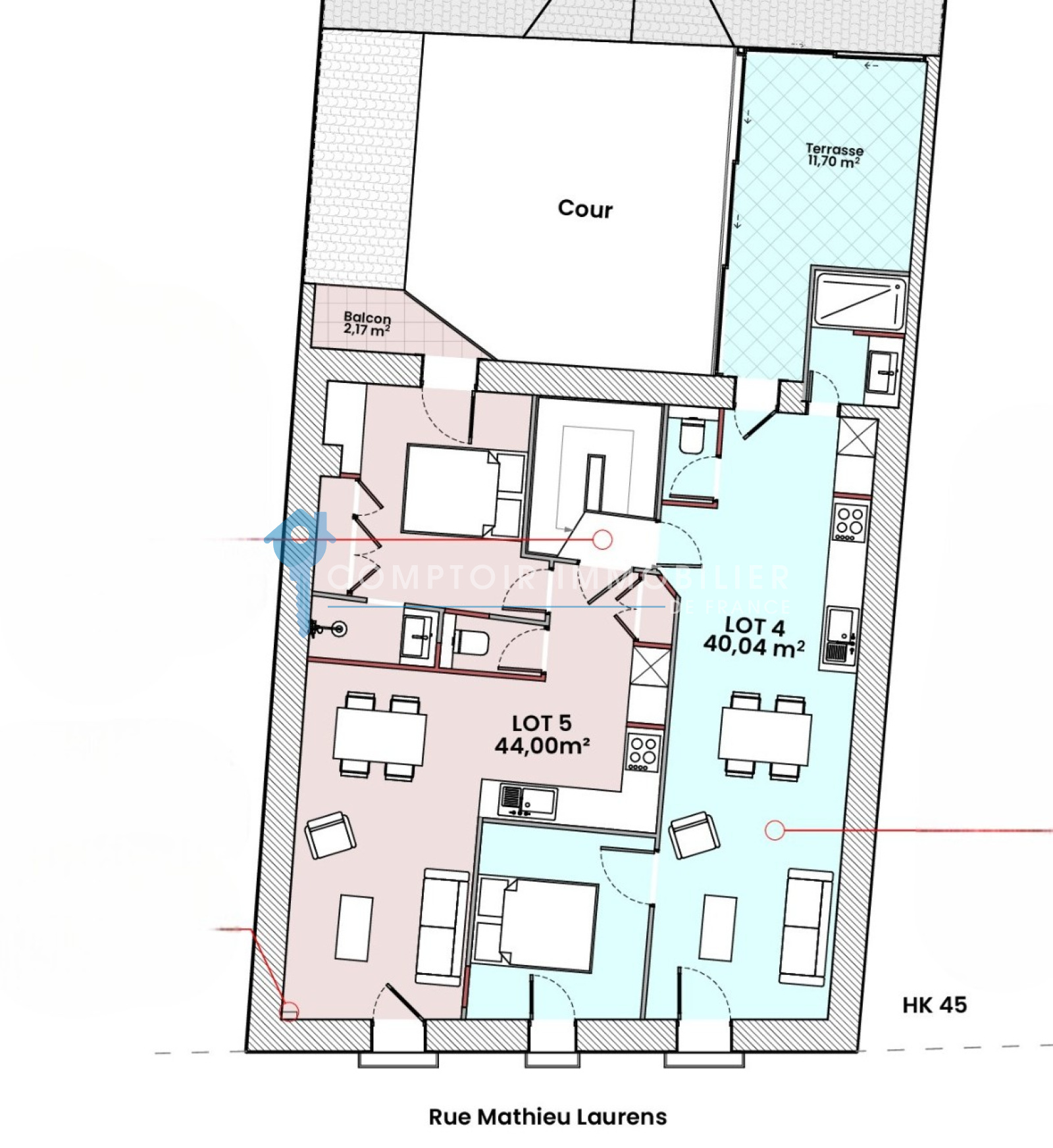
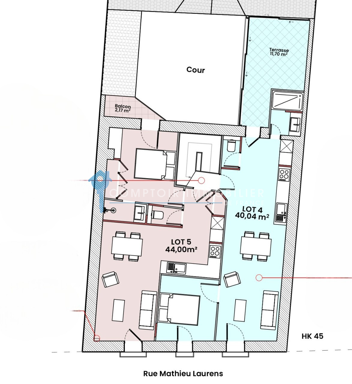
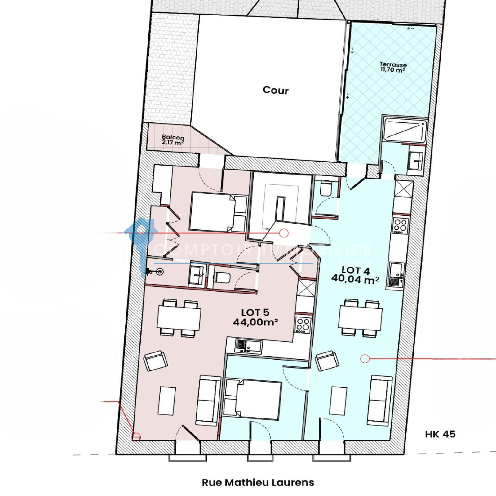
Montpellier Centre / Antigone / Méditérranée, venez découvrir cet appartement de F2/F3 de 44m² (Possibilité de récupérer 15m² carrez dans les combles) au 1er et dernier étage d'un petit immeuble ancien! Pied à Terre / 1er Achat, énorme potentiel, Bricoleur, architecte ou tout simplement passionné d'aménagement intérieur, manifestez vous rapidement, ses volumes sont rares!! Soyez Réactif!! Le plus : parties communes votées et payées, charges 15€ par mois, cellier, balcon..!! Dossier sur demande. AGENCE JNCA - Johan NAVARRO - 06 47 39 77 65 - EI Agent commercial RSAC N° 518 935 812 - Ville du greffe : MONTPELLIER - Plus d'informations sur cif-montpellier.com (réf. 1816)
