Page suivante
Page précédente
Cabrières (30210)

Maison 7 pièce(s) 4 chambre(s) 154 m²

2
1244 m²
1
499 000 €
Réf V6290093762

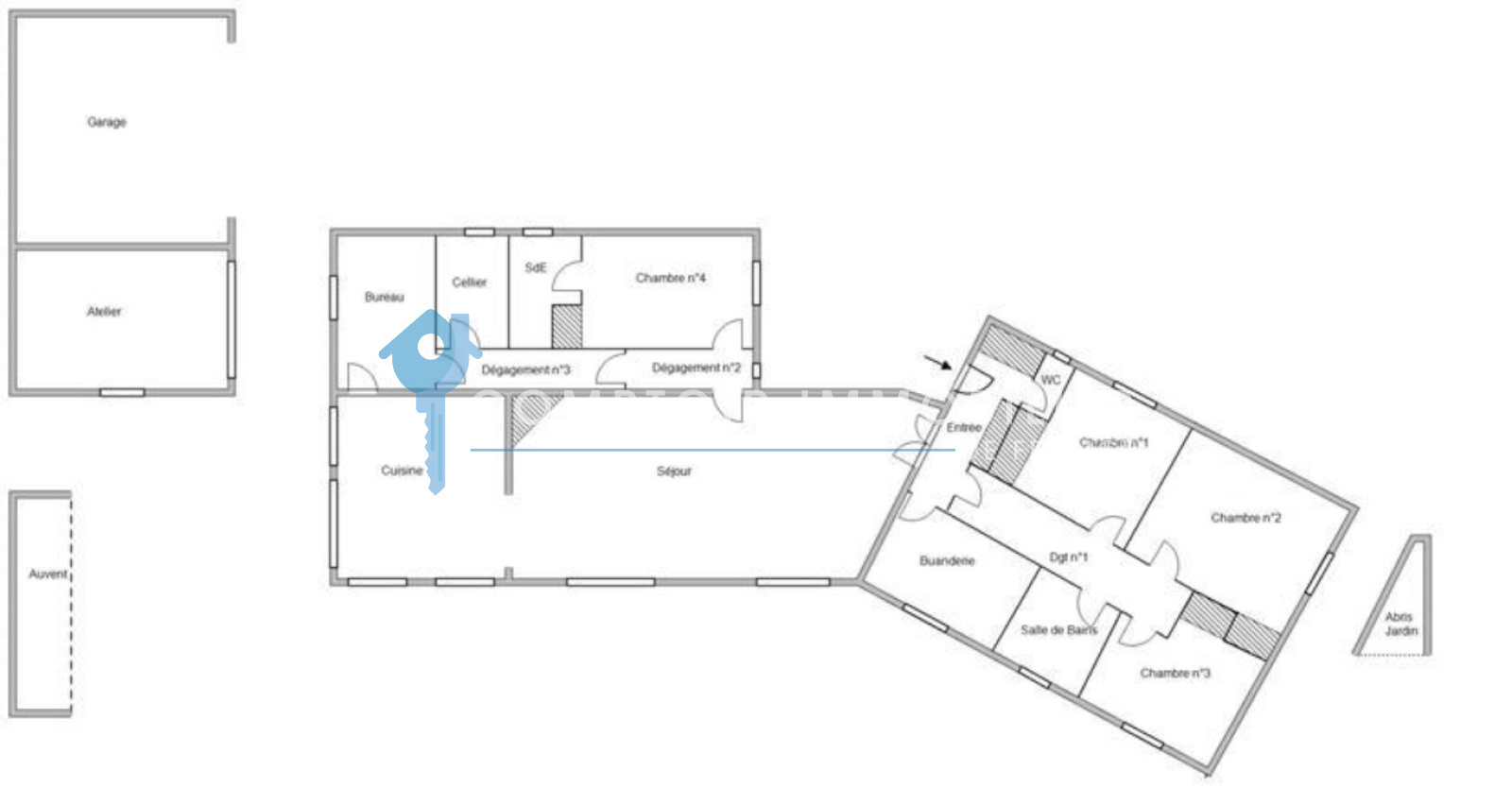
L'ESSENTIEL : Confortable villa de plain-pied, climatisée, 4 chambres dont une suite parentale, avec piscine chauffée et pool house, garage, car port 2 voitures...

ON AIME : Le quartier résidentiel calme, l'exposition, le séjour lumineux (cheminée à insert) ouvert sur la cuisine très réussie (avec cellier), les 2 espaces nuit bien distincts, les aspects pratiques : bureau, buanderie, abri-bois, la belle terrasse exposée Sud donnant sur le jardin arboré, le très bon état.

PRESTATIONS COMPLETES : portail automatique, pool house avec douche solaire, climatisation réversible, cheminée à insert, cuisine entièrement équipée, double vitrage, volets électriques à commande centralisée, isolation récente, adoucisseur d'eau, ...

L'AVIS DE L'AGENT IMMOBILIER : Retraités, télétravailleurs, familles avec enfants, artisans, ce bien de qualité, proche de la nature,offre une cadre de vie privilégié : venez le découvir !

VOTRE CONTACT : Philippe HALLES - Tél : 0 606 712 007 - Agent commercial (E.I.) - RSAC Montpellier n° 503 691 263.

Annonce proposée par un agent commercial


Les informations sur les risques auxquels ce bien est exposé sont disponibles sur le site Géorisques

Bilan énergétique

Diagnostics énergetiques
A propos de ce bien Caractéristiques de ce bien
  • Surface 154 m²
  • carrez 153,60 m²
  • terrain 1 244 m²
  • 4 chambre(s)
  • 2 salle(s) d'eau
  • construit en 1999
  • cuisine américaine (équipée)
  • 1 garage(s)
  • exposition Sud
  • 1 niveau(x)
  • vue Jardin
  • arboré
  • visiophone
  • accès handicapé

Financier

Informations financières
Prix de vente 499 000 € Les honoraires d'agence seront intégralement à la charge du vendeur
Taxe foncière annuelle 2 119 €

Autour du bien

Découvrez le quartier

Simulation

Calcul des mensualités
* Champs obligatoires
Philippe HALLES