Page suivante
Page précédente
Nîmes (30900)

Appartement 4 pièce(s) 3 chambre(s) 96.4 m²

1
1
Ascenseur
420 000 €
Réf V6860095744

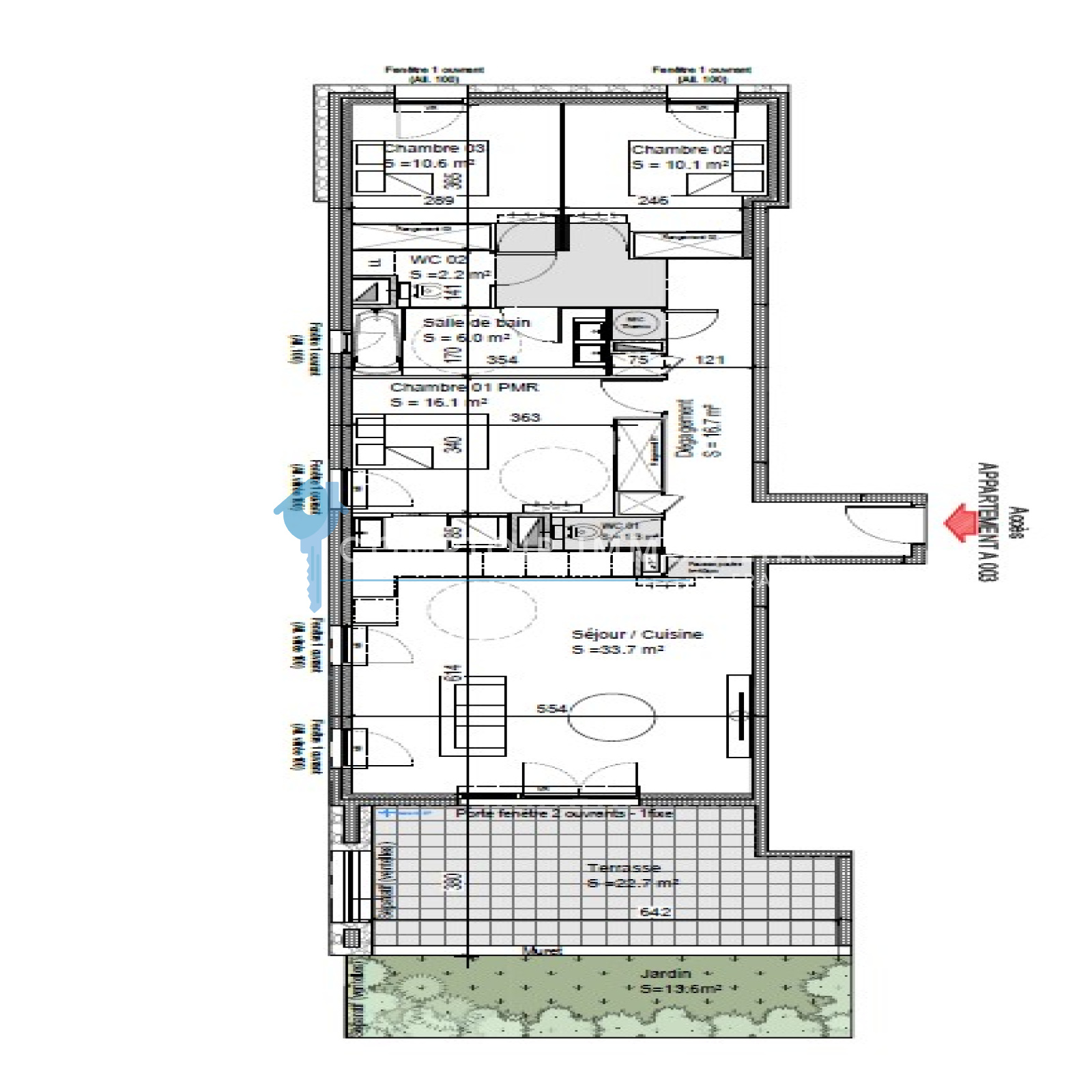
Superbe appartement T4 sur les collines Ouest, à 10 min du centre-ville, au calme, dans copropriété arborée, sécurisée, disposant dun bel exterieur (terrasse 21 m²), sans vis-à-vis.

Spacieux et confortable (climatisé), il offre des pièces généreuses : séjour 33 m², suite parentale 16 m², ...

Vous disposerez également de 2 garages.

On apprécie les prestations de qualité, et la réalisation parfaitement intégrée dans son cadre de verdure.

Copropriété :25 lots. Procedure : néant. Charges : 2 067 € / an (estimées).

Pour en savoir plus : Philippe Hallès - Tél : 0 606 712 007

Annonce proposée par un agent commercial

Bilan énergétique

Diagnostics énergetiques
A propos de ce bien Caractéristiques de ce bien
  • Surface 96,40 m²
  • carrez 96,40 m²
  • séjour 34 m²
  • 3 chambre(s)
  • 1 salle(s) de bain
  • 1 salle(s) d'eau
  • construit en 2024
  • cuisine américaine
  • Chauffage individuel : air pulsé (climatisation)
  • 2 garage(s)
  • exposition Sud-Ouest
  • 1 étage(s)
  • ascenseur
  • vue GARRIGUE NIMOISE
  • terrasse
  • arboré
  • accès handicapé

Composition

Composition de ce bien

Rez-de-chaussée

  • salon/sejour 33.70 m²
  • chambre 10.1 m²
  • chambre 10.6 m²
  • salle de bain 6 m²
  • chambre 16m2 m²

Info copro

Copropriété
  • Copropriété Oui
  • Lot n° A003
  • Nombre de lots 36
  • Quote part annuelle des charges 1 967 €
  • Plan de sauvegarde Non
  • Statut du syndic Pas de procédure en cours

Financier

Informations financières
Prix de vente honoraires TTC inclus 420 000 €
Charges 164 €

Autour du bien

Découvrez le quartier

Simulation

Calcul des mensualités
* Champs obligatoires
Philippe HALLES